广州常天便捷生活服务有限公司

ELEVATOR DOOR SYSTEM电梯门系统

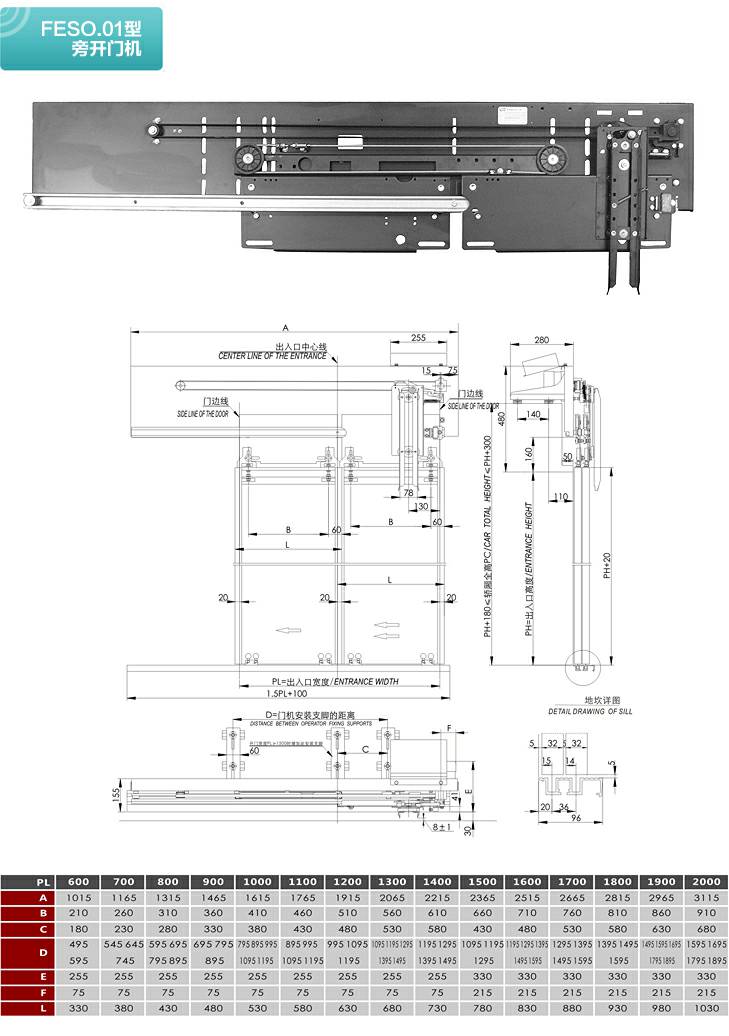
FESO.01型旁开门机